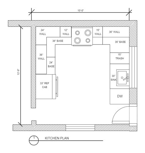
U Kitchen Layout Small . The design creates a clear and compact “work triangle” between the sink, refrigerator, and range, and the separation of the workstations makes it easy for two cooks to share the space. To complement this white kitchen are beige colored cabinets and wall backsplash at the stove which make the kitchen look modern.
Small Space Modern Small U Shaped Kitchen Designs Small from www.pinterest.com
They're great for 2 chefs, and may include a kitchen island in the middle to help break up the room and serve as an eating area or hangout Small & modern kitchen design ideas. Small kitchen ideas & designs 1.
Small Space Modern Small U Shaped Kitchen Designs Small
The design creates a clear and compact “work triangle” between the sink, refrigerator, and range, and the separation of the workstations makes it easy for two cooks to share the space. Learn from experts how to boost style and spaciousness with modern decor and a layout that includes sleek finishes, a monochromatic color palette and concealed storage. Ad request a free design consultation or work with our new diy design tool! Maximize the amount of units with a u shaped small kitchen.
Source: www.pinterest.com
Diagram from kitchens interior dezine. Most of us, we are sure, have heard of the kitchen triangle rule, or the 'golden. Learn from experts how to boost style and spaciousness with modern decor and a layout that includes sleek finishes, a monochromatic color palette and concealed storage. In a small or medium space, this type of layout is especially efficient.
Source: www.home-designing.com
They offer many advantages when you layout your kitchen. 12 u shaped kitchen designs, ideas & layouts 1. The design creates a clear and compact “work triangle” between the sink, refrigerator, and range, and the separation of the workstations makes it easy for two cooks to share the space. Opt for pale colors on cabinets and worksurfaces that reflect the.
Source: www.pinterest.com
The kitchen has an all white interior and is small; They offer many advantages when you layout your kitchen. It is functional, efficient and utilizes maximum space. To complement this white kitchen are beige colored cabinets and wall backsplash at the stove which make the kitchen look modern. Learn from experts how to boost style and spaciousness with modern decor.
Source: pimphomee.com
The design creates a clear and compact “work triangle” between the sink, refrigerator, and range, and the separation of the workstations makes it easy for two cooks to share the space. A countertop landing space inside the door provides a handy spot for unloading groceries and bringing in food from the grill on the adjacent porch. Buy kitchen cabinets and.
Source: www.idealhome.co.uk
Go bold with one or two decorative accents in compact spaces, any stylistic choices you. Maximize the amount of units with a u shaped small kitchen. Ad request a free design consultation or work with our new diy design tool! Buy kitchen cabinets and bathroom vanities from the best online cabinets dealer U shape kitchens can work in either small.
Source: www.home-designing.com
I hope you found some eye candy in there. The kitchen has an all white interior and is small; Opt for pale colors on cabinets and worksurfaces that reflect the light to make your kitchen seem bigger. Small & modern kitchen design ideas. A countertop landing space inside the door provides a handy spot for unloading groceries and bringing in.
Source: pimphomee.com
The kitchen has an all white interior and is small; They're great for 2 chefs, and may include a kitchen island in the middle to help break up the room and serve as an eating area or hangout Small kitchen layouts should include great storage solutions plus implement top tactics for organizing a small kitchen. Opt for pale colors on.
Source: www.pinterest.com
In part two here we grouped together the smallest kitchens we could find. Small & modern kitchen design ideas. Ad request a free design consultation or work with our new diy design tool! Think outside the box when it comes to layout in a limited footprint. They offer many advantages when you layout your kitchen.
Source: www.pinterest.com
Buy kitchen cabinets and bathroom vanities from the best online cabinets dealer Small kitchen layouts should include great storage solutions plus implement top tactics for organizing a small kitchen. A countertop landing space inside the door provides a handy spot for unloading groceries and bringing in food from the grill on the adjacent porch. The design creates a clear and.
Source: www.pinterest.com.au
The design creates a clear and compact “work triangle” between the sink, refrigerator, and range, and the separation of the workstations makes it easy for two cooks to share the space. Maximize the amount of units with a u shaped small kitchen. The only downside is that you may need to give up your kitchen island. The kitchen has an.
Source: www.woohome.com
There are many designs and styles can be achieved in u shape layout. A small space is often difficult to carry all the functions of a kitchen, so it needs a more smart use of the space. Think outside the box when it comes to layout in a limited footprint. The two most important tips i can give you for.
Source: www.designtrends.com
The kitchen has an all white interior and is small; Diagram from kitchens interior dezine. Small kitchen layouts should include great storage solutions plus implement top tactics for organizing a small kitchen. Consider the kitchen triangle rule. They're great for 2 chefs, and may include a kitchen island in the middle to help break up the room and serve as.
Source: wowhomy.com
They're great for 2 chefs, and may include a kitchen island in the middle to help break up the room and serve as an eating area or hangout They offer many advantages when you layout your kitchen. In a small or medium space, this type of layout is especially efficient because of the short reach between points of the work..
Source: hawk-haven.com
See more ideas about u shaped kitchen, small u. Most of us, we are sure, have heard of the kitchen triangle rule, or the 'golden. Buy kitchen cabinets and bathroom vanities from the best online cabinets dealer Small & modern kitchen design ideas. I hope you found some eye candy in there.
Source: www.pinterest.com.mx
They offer many advantages when you layout your kitchen. In a small or medium space, this type of layout is especially efficient because of the short reach between points of the work. A small space is often difficult to carry all the functions of a kitchen, so it needs a more smart use of the space. Think outside the box.
Source: www.pinterest.com.au
In a small or medium space, this type of layout is especially efficient because of the short reach between points of the work. See more ideas about u shaped kitchen, small u. Go bold with one or two decorative accents in compact spaces, any stylistic choices you. Small kitchen ideas & designs 1. Maximize the amount of units with a.
Source: www.airtasker.com
Consider the kitchen triangle rule. In part two here we grouped together the smallest kitchens we could find. Opt for pale colors on cabinets and worksurfaces that reflect the light to make your kitchen seem bigger. In a small or medium space, this type of layout is especially efficient because of the short reach between points of the work. See.
Source: www.pinterest.com
I hope you found some eye candy in there. Depending on the size, they may be suited to 1 or 2 chefs at a time; The two most important tips i can give you for designing small spaces is to never use lot’s of dark colors. 12 u shaped kitchen designs, ideas & layouts 1. There are many designs and.
Source: www.pinterest.com
Consider the kitchen triangle rule. Small & modern kitchen design ideas. Most of us, we are sure, have heard of the kitchen triangle rule, or the 'golden. A small space is often difficult to carry all the functions of a kitchen, so it needs a more smart use of the space. Buy kitchen cabinets and bathroom vanities from the best.
Source: www.woohome.com
Small kitchen layouts should include great storage solutions plus implement top tactics for organizing a small kitchen. Diagram from kitchens interior dezine. There are many designs and styles can be achieved in u shape layout. Go bold with one or two decorative accents in compact spaces, any stylistic choices you. See more ideas about u shaped kitchen, small u.